Ready to Move - Unfurnished - Studio

Map

Ready to Move - Unfurnished - Studio

Damac Hills, Dubai Sep 07, 2025

$200,000 Selling

Overview
Category Ready
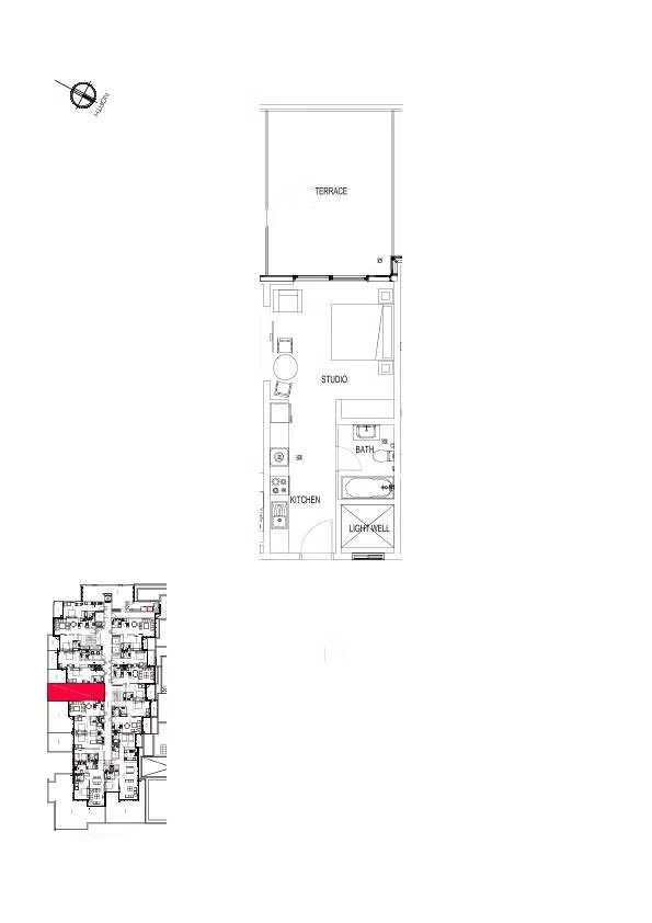
Size m² 56 m²
Number of bathrooms 1
Price $200,000
Description

Modern Studio Apartment for Sale in Dubai DAMAC Hills

Discover modern living in the heart of DAMAC Hills! Ideal for investors and first-time homebuyers, this stylish studio apartment offers comfort, convenience, and luxury amenities all in one. Located in one of Dubai’s most prestigious communities, this ready-to-move-in apartment is waiting for you.

Interior & Design

Step into a bright, open-plan studio featuring modern finishes, a well-appointed kitchen, and a spacious bathroom. Designed for maximum comfort, it boasts large windows that fill the space with natural light and offer serene park views. Enjoy a private terrace, perfect for relaxing or entertaining guests.

World-Class Amenities

Residents enjoy access to a wide range of premium amenities, including:

  • Landscaped gardens and green spaces
  • Outdoor swimming pools and sun decks
  • Fully equipped gym and fitness facilities
  • Skate park and children’s Playgrounds
  • Luxurious lobby and 24-hour concierge
  • On-site supermarket and retail outlets
  • Outdoor lounge areas and shaded parks

Location Benefits

  • Jebel Ali School (0.6 km)
  • South View School (1.5 km)
  • Fifth Avenue Restaurant (1.4 km)
  • Motor City (3.6 km)
  • Sports City & Dubai Swimming Academy (4.5 km)

Mortgage Information

You can benefit from a mortgage of up to 50% of your property’s value.

Annual Interest Rate: Ranges between 4% and 5%.

For Employees:
A verifiable monthly income of at least USD 7,000 (or the equivalent in AED or your local currency) is required.

For Business Owners:
The average bank account balance over the last 6 months must be at least USD 11,000 (or the equivalent in AED or your local currency).

For more information, please contact us directly.


Features

Wifi

Parking

Swimming pool

Balcony

Garden

Security

Fitness center

Air Conditioning

Central Heating

Children Playground



Location

DAMAC Hills



Share this property:

 Dubai Office Number:  +905382765407